

Experience Smooth, Safe & Stylish Home Lifts in Coimbatore
- Why Choose Qeuto Home Lifts?
Qeuto Home Lifts make your everyday living more convenient by offering smooth, safe, and stylish vertical travel inside your residence. Whether for duplex villas, bungalows, or apartments, our lifts blend perfectly with your interiors and enhance your home’s value.
- Compact & Space-Saving Designs
- Energy-Efficient & Silent Operation
- Elegant Cabin Interiors
- Easy Access for Seniors & Children
- Complies with Latest Safety Standards
- 24/7 Service & Support
Qeuto Home Lift Solutions
At Qeuto Lifts, we specialize in modern home lift solutions that combine convenience, safety, and style for today’s households. Whether you live in a duplex villa, bungalow, or apartment, our residential lifts are designed to make daily living more comfortable while enhancing your home’s value. From compact standard models to luxury finishes and space-saving MRL options, Qeuto provides tailor-made lift solutions that fit seamlessly into your interiors. Every lift is built with advanced safety systems, energy-efficient technology, and customizable designs, ensuring a perfect balance of functionality and elegance.
Qeuto Compact Standard Home Lifts
Qeuto Compact Standard Home Lifts are designed to bring everyday convenience and comfort into your residence without the need for large spaces or heavy infrastructure changes. Perfect for duplex villas, bungalows, and apartments, these lifts provide a cost-effective mobility solution for families while maintaining high standards of safety, reliability, and performance.
Engineered with space-saving technology, Compact Home Lifts can be installed even in tight shafts or limited areas, making them ideal for homes where architectural space is a constraint. Despite their compact size, they are built to offer a smooth, silent, and vibration-free ride for all age groups, including seniors and children.
The cabins are available in modern, elegant designs with customizable finishes that seamlessly blend with your home’s interiors. From stainless steel panels to wooden laminates and glass doors, Qeuto offers flexibility in styling to match your lifestyle.
Safety is at the core of every Qeuto Compact Home Lift, featuring automatic rescue devices, advanced control systems, and compliance with international safety standards. With energy-efficient drive technology, these lifts also help reduce electricity consumption, making them both eco-friendly and economical.


Qeuto Luxury Home Lifts
Qeuto Luxury Home Lifts are crafted for those who value elegance, comfort, and prestige in their living spaces. Designed to complement the interiors of luxury residences, villas, and premium apartments, these lifts are more than just a mobility solution — they are a statement of lifestyle and sophistication.
Every Luxury Home Lift is built with premium materials and customizable finishes, including glass walls, stainless steel, wood laminates, and ambient lighting options, allowing you to design a cabin that matches your home’s décor. The seamless engineering ensures a smooth, silent, and vibration-free ride, making every journey feel effortless and comfortable.
Powered by advanced gearless traction systems, these lifts offer energy efficiency, precision leveling, and long-lasting performance. Safety remains uncompromised with features like automatic rescue devices, emergency alarms, child-friendly controls, and compliance with EN and IS safety standards.
Beyond functionality, Qeuto Luxury Home Lifts are designed to elevate the aesthetics of your home while providing ease of access for family members of all ages. Whether it’s enhancing everyday convenience or adding a touch of sophistication to your property, these lifts bring together modern engineering and timeless luxury.


Qeuto Hydraulic Home Lifts
Qeuto Lifts, we bring advanced vertical mobility into your home with our Hydraulic Home Lifts. Compact, reliable, and stylish, these lifts are the perfect solution for villas, duplex houses, and premium residences where safety and comfort are a priority.
Every Qeuto Hydraulic Home Lift is built with cutting-edge safety features including automatic rescue devices, overload protection, and emergency lowering systems. Combined with smooth, silent operation, our lifts ensure a comfortable and secure ride for every family member, whether elderly, children, or daily users.
With customizable cabin interiors, eco-friendly options like solar integration, and low maintenance requirements, Qeuto Hydraulic Home Lifts add value, accessibility, and elegance to your living space. More than just a convenience, they are a lifestyle upgrade that enhances the way you move within your home.
Qeuto Hydraulic Home Lifts are not just about moving between floors – they are about enhancing your lifestyle. Whether it’s for elderly family members, children, or simply the convenience of daily living, our lifts add value, accessibility, and elegance to your home.


Qeuto Custom-Designed Home Lifts
Qeuto Lifts, we understand that every home is unique. That’s why we create custom-designed home lifts tailored to your space, style, and requirements. More than just a mode of vertical transport, our lifts are crafted to blend seamlessly with the architecture and aesthetics of your home.
With flexible dimensions and design options, Qeuto custom home lifts are ideal for new residences as well as retrofit projects. Whether your home has limited space or requires a specific shaft size, we provide solutions that make installation smooth and efficient without major structural changes.
Each lift is equipped with advanced technology and robust safety systems such as overload protection, auto rescue devices, and emergency lowering features. Alongside these safety measures, our lifts ensure smooth, silent, and energy-efficient rides, delivering comfort and peace of mind for every family member.
From elegant glass cabins to luxurious interiors, lighting, and finishes, every element of a Qeuto custom-designed home lift is personalized to reflect your lifestyle. Combining functionality, safety, and beauty, our lifts are more than just an addition—they’re a statement of modern living.


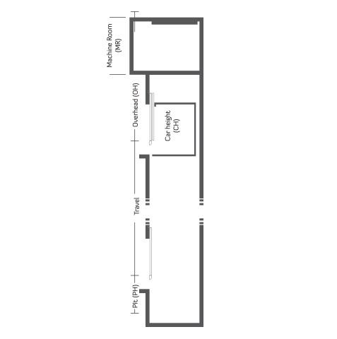
Passenger Lift Dimensions




Safety First with Qeuto Lifts
Qeuto Lifts, safety is never compromised. Every lift we design and install is equipped with international-standard safety systems to ensure a secure and worry-free ride for every user. From technology to design, we focus on creating lifts that not only move people but also protect them at every step.
Why you should choose us?
- Expert Team Members
Our expert team at Qeuto Lifts delivers safe, innovative, and reliable lift solutions with trusted support.
- Fastest Customer Service
Fastest customer service with quick, reliable support for smooth lift operations.
- Competitive Pricing Plan
Qeuto Lifts offers reliable lift solutions at competitive prices, ensuring quality, safety, and value for every project.
Elevating Experiences – Download Brochure
Discover more about Qeuto Lifts, our wide range of elevator solutions, and why we’re trusted by 200+ clients worldwide. Get the complete brochure with all details in one place.
Let’s Elevate Your Space Together
At Qeuto Lifts, we’re dedicated to providing safe, reliable, and innovative elevator solutions. Whether you’re planning a new installation, need modernization, or require maintenance support, our team is here to help.
- AddressDimond Nest, 88 Mandharalaya Garden, Coimbatore, 641022
- Contacts.murugan@qeutolifts.com+91 80560 41058
Feel free to contact with us, we don’t spam your email
Trusted by over 200 clients worldwide.
“ You have done all the work I have given you, we are satisfied, good job. ”
Aravind Kumar“ Excellent lift. After sales, service also good. ”
Jagadeesh Manikavasagam.“ Reliable ride & comfortable ”
Asok Kumar